Appartement en location saisonnière (39000)

Nouvel aménagement !
Transformation de la chambre parentale et de la chambre enfant en chambres destinées à des étudiants pour une location de plus longue durée.
Corps de ferme Bruailles (71064)
Projet d'une vie pour mes clients !
Réabilitation totale d'un corps de ferme appartenant à la famille depuis plusieurs générations.
Projet gîte de groupe (39130)
Une nouvelle prestation idées déco et aménagement !
Mes clients sont les nouveaux propriétaires d'un grand gîte de 15 couchages dans le Jura secteur Clairvaux-les-Lacs.
Ils ont fait appel à moi pour avoir des pistes afin de rendre cette belle maison plus chaleureuse et accueillante avec peu de travaux.
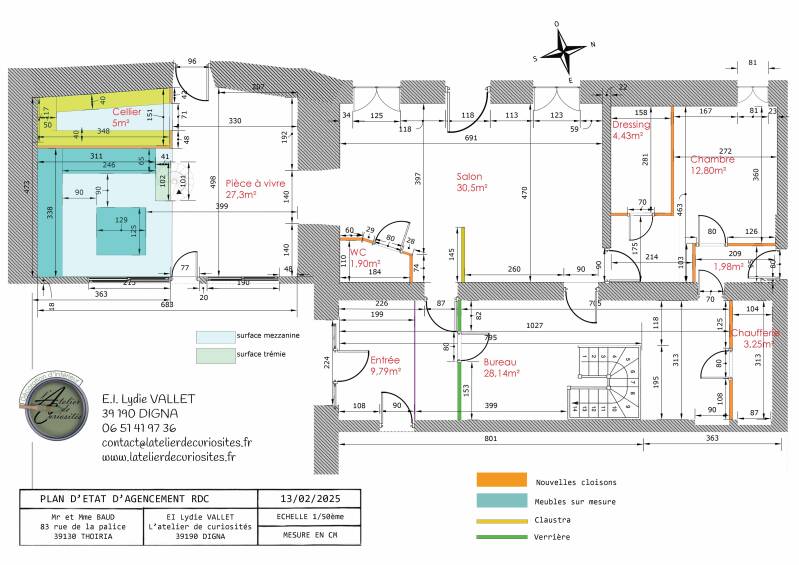
Rénovation d'une maison à Thoiria (39130)

Nouvel agencement, nouvelle vie!
J'ai réalisé pour de nouveaux clients des plans d'agencement et d'ameublement pour la maison qu'ils viennent d'aquérir dans le Jura.
Projets inspirant avec l'ajout de nouvelles pièces au rdc et l'agencement complet des combles aménageables. Les travaux seront réalisés en famille. Merci à eux pour leur confiance et bon courage pour les travaux à venir. 👍
Appartement Ledonien (39000)
Nouveau projet inspirant!
Première étape, transformer un long couloir blanc en véritable galerie d'art privée intimiste... L'entrée qui précède ce couloir a déjà été décorée aux goût de ma cliente, je m'en inspire...
Rangement sur mesure Digna (39190)
L'indispensable cellier.
Nouveau défi! Créer un placard qui s'intègrera dans la pièce et proposera un grand volume de rangement pour libèrer de l'espace.
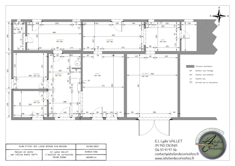
Valorisation immobilière Sagy (71580)

En partenariat avec un agent immobilier indépendant.
J'ai proposé à Mme Robin, conseillère SAFTI de l'aider à valoriser ses biens immobiliers en permettant à ses clients de se projeter plus facilement grâce à la création de plans d'agencement et d'aménagement.
Projet d'aménagement de combles St Amour (39160)

Et si vous aménagiez vos combles!
Mes clients ont fait appel à moi pour élaborer des plans d'aménagement afin de les aider à se projeter.
Projet chambre d'enfant Vosbles (39240)
Une petite fille de 5 ans qui adooore les licornes!!
Ce projet prend vie avec cette envie, modérée par ses parents pour rester dans la juste mesure.
S. est ravie et à pris possession de sa nouvelle chambre après les travaux réalisés par ses parents.
projet Chambre d'hôtes Vosbles (39240)
Pour des séjours délicieux au coeur de la petite montagne jurassienne.
Mes clients ont pour projet de transformer une partie de leur habitation en chambre d'hôtes. Aujourd'hui c'est un plateau vierge, ils ont fait appel à moi pour imaginer ce qu'ils pourront créer.
Pour le salon et l'espace kitchenette, des tonalités douces et chaudes pour un confort délicat inspirant la quiétude.

Pour la chambre une ambiance élégante et feutrée. Des couleurs profondes contrastées par l'éclat du laiton.
Projet bureau B. Vosbles (39240)
Ma prestation :
- Planche d'inspiration
- Modèlisation 3D de la pièce
Donner vie à une pièce juste avec de la couleur et quelques objets décoratifs...
Le bureau de ma cliente fait 5.76 m² avec une disposition en L. Tous les murs sont blancs avec un parquet d'origine en chêne moyen.
Place à une décoration colorée et ponctuée d'objets décoratifs en fibre naturelle et bois pour une ambiance bien-être et studieuse.
Projet Cuttura (39170)
Qui n'a pas rêvé d'avoir une pièce entière destinée au rangement de tous ses vêtements et accessoires ?
Ma cliente désire transformer une chambre inutilisée de 12m² en dressing ouvert.
L'ambiance sera intimiste et feutrée pour un effet boudoir.