Valorisation immobilière Sagy (71580)
Grâce à mon expertise en décoration d'intérieur, je vais mettre en valeur les points forts de cette propriété et susciter l'intérêt des acheteurs potentiels.

Il sagit d'une maison individuelle Bressanne typique qui nécéssite une rénovation totale, à la campagne avec un très grand terrain arboré.
Mme Céline ROBiN conseillère SAFTI fait appel à moi pour élaborer des plans d'aménagement afin d'aider ses clients à se projeter dans ce que pourrait devenir cette maison.
J'élabore deux propositions d'aménagement, dans les 2 cas on retrouve:
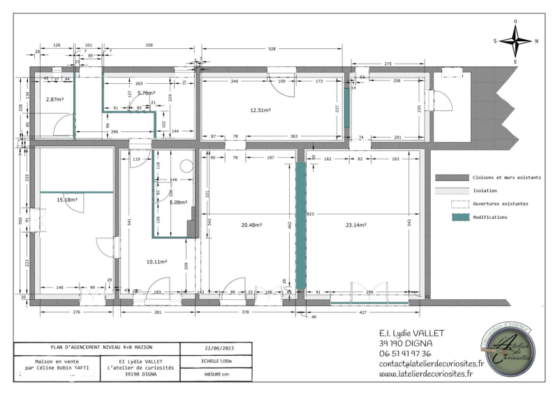
- Une pièce de vie de 43m² avec cuisine ouverte sur salon et salle à manger. Le salon créé dans l'ancienne grange dispose d'une hauteur sous faîtage de 5,85m ce qui donne un très beau volume et un apport de lumière naturelle grâce à l'installation d'une verrière à la place des portes de grange.
- Une chambre de plus de 12m² avec un grand placard mural et un accès au jardin coté Ouest.
- Une salle de bain spacieuse avec fenêtre disposant d'une douche, une baignoire et un plan double vasques.
- Un WC indépendant.
- Un couloir avec accès au jardin.
Proposition 1
Cet aménagement privilégie de vastes pièces et de nombreux rangements.
L'entrée coté EST face à la route avec possibilité de se garer juste devant.
Les avantages de cette proposition
- Une grande entrée ouverte sur la pièce de vie permettant l'intallation d'un meuble, patères et banc, et pourquoi pas un bureau...
- Une buanderie de 5m² avec de nombreux rangements et l'installation d'un étentage escamotable.
- Une chambre parentale avec un très grand dressing aménageable selon les besoins.
- Un cellier de plus de 6m² qui offre un espace de rangement supplémentaire.
Proposition 2
Cet aménagement privilégie l'ajout d'une chanbre supplémentaire ainsi qu'une entrée coté jardin en contournant la maison par le Sud.
Les avantages de cette proposition
- Une grande entrée coté jardin permettant l'intallation d'un meuble, patères et banc. L'accès existe déjà mais fait partie de la zone non habitable.
- Une chambre supplémentaire de plus de presque 10m².
- Une buanderie suffisament vaste pour lave linge et sèche linge.
- Une chambre parentale de plus de 15m² avec un très grand placard mural offrant de nombreux rangements.